
© Dana Ibrahim
THESIS DETAILS:
It was a library and will always be but in another way.
Libraries today have changed in many aspects regarding the function, the use, and the form. It might be thought that libraries will disappear in the future and people will no longer use them. However, libraries are not important for only reading books but in being a fundamental function in the community and a true meaning of generations' renaissance.
The project - which the core is the library - started from a personal experience, noticing that in the MENA region, people cannot go by walking to libraries, which means they are far from their homes. Therefore, it is not easy to go to libraries for all people which is a big problem for such a fundamental function. In other words, it is not accessible for different categories of people such as children, elderlies, and people with disabilities.
The project is a new representation of libraries in the MENA region that is offered to people from all categories without the need to use transportation. The project is divided into two main functions; the library and the cultural research centre that studies the cultural aspect of the site and supports the library. It came from people's needs which were one of them; the need to have socio-cultural activities.
The solution started from the site selection that was based mainly on the distance where the average person can walk without taking a rest and it was 1.6 km, which is between 15-20 minutes walking to reach the site.
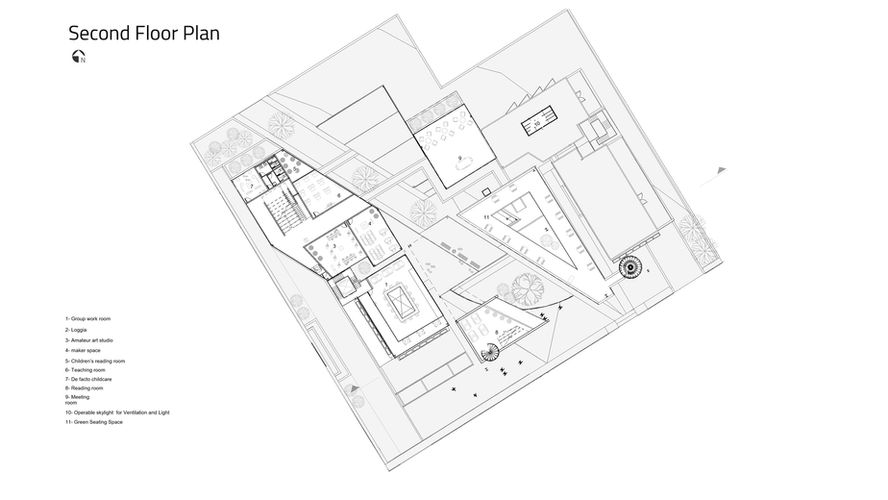
Some other important details of the project:
-The project is based on its sustainable core – which is part of the library - that represents a flexible and enjoyable journey that the user will have to make the project active 24 hours.
-The sustainable core is the link between other functions of the design. When moving up, the noise become less increasingly.
-Mainly the project is designed in concrete and steel. Using different materials than those commonly used in Jawa in order to propose a new image and to bring attention and curiosity about the project.
-Many sustainable techniques were used in the project to be sure that the project’s different functionsare comfortable and flexible to use.





























